
Located in the heart of Gimli, Manitoba, Centre Street West Developments is a modern, upscale living space prioritizing comfort, convenience and peace of mind. At our residences, you can enjoy the privacy and the beauty of Gimli while being minutes away from a huge range of amenities including shopping centers, medical facilities, recreational areas and more! Relish in belonging to a well-established, thoughtfully designed community while enjoying a social, active lifestyle. And with 24/7 security and no condo fees, the only thing you have to worry about is where to explore next.
Enjoy unparalleled comfort with our featured amenities, including:
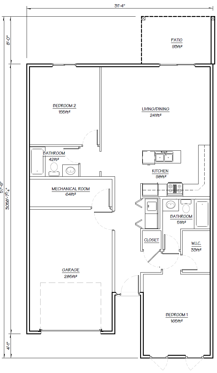
Thoughtfully designed, wheelchair accessible residences
Spacious 2-bedroom, 2-bathroom floor plans (1,160 sq ft living space w/ finished 280 sq ft garage)
Attached garage with direct access to your home
Covered back patio and relaxing outdoor space
In-floor radiant heating for year-round comfort
No condo fees or unexpected, additional expenses
24/7 security surveillance
Long-term leases
Small pets allowed
Monthly Rate: $2200
plus utilities
Embrace comfort, convenience, and security in the heart of beautiful Gimli, Manitoba. Ready to elevate your lifestyle? Schedule a tour today and make Centre Street West your new home! Tours will be available in the near future.
Tenancy Application Form